スガツネ工業 SUGATSUNE KOGYO
DX80G−10/隠し丁番
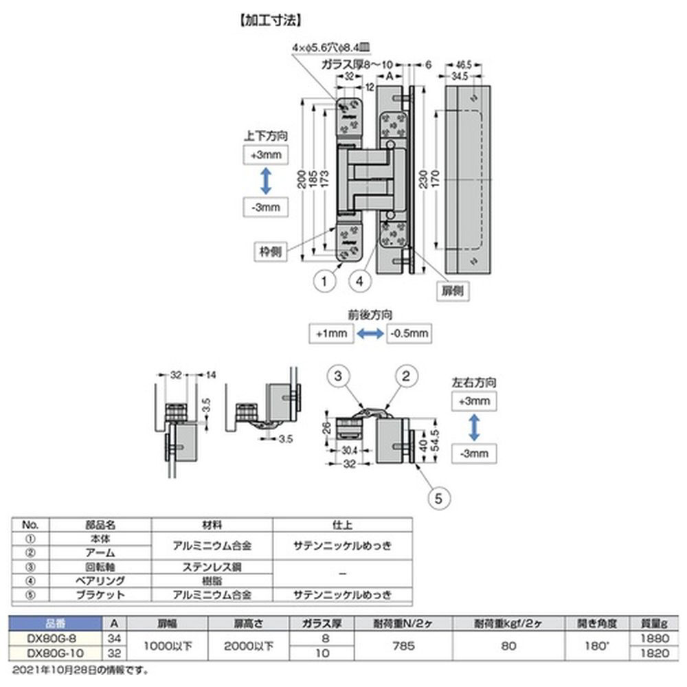
DX80G10
ガラス扉に使用できる高荷重の隠し丁番です。
通常価格 ¥42,700(税別)
JAN:4510932219822 
お取り寄せ 
4月中旬以降出荷予定
「ご注文時の状況によりお届けまでに平常時よりも長い期間を要する場合がございます。お急ぎの場合は営業担当者へお問い合わせください。」

 数量

■ガラス扉に使用できる高荷重の隠し丁番です。
■上下、左右、前後方向の微調整が簡単にできる三次元調整機能付きです。
■調整方法にキネマティックコントロールを採用することにより、調整時の軸のぶれをなくし、本体にかかる負担を少なくしています。

【仕様】
・弊社10万回開閉試験クリア

【注意】
・画像は同シリーズのいずれかの製品であり、こちらの品番のものとは外観が異なる可能性があります。

商品スペック
メーカー希望
小売り価格(税別)
オープン